Description
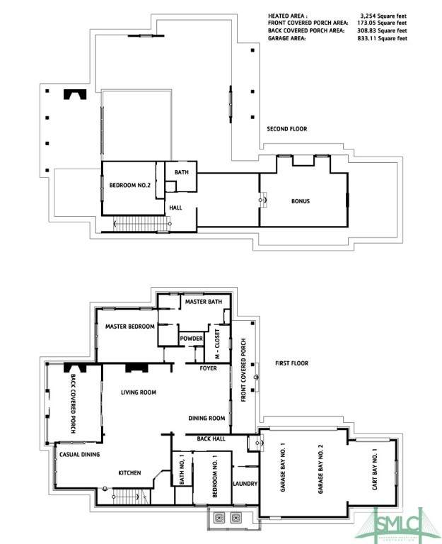
Experience luxury living in this under-construction custom home located in the neighborhood of The Enclave. Professionally designed, this open-concept is perfect for entertaining, both indoors and out. The chef's kitchen is a culinary dream, featuring custom cabinetry extending to the ceiling, an expansive island for meal prep, gas cooktop, pot filler, under-cabinet lighting, and much more. The main level boasts a primary suite with coffered ceilings, leading to a spa-like bathroom complete with a soaking tub, a walk-in shower with a bench, and hidden niches. Upstairs, you'll find 2 additional bedrooms, an oversized bonus room that can serve as a 4th bedroom, and a versatile flex space that can be used as an office, gym, or craft room. The home also includes a full 3-car garage with tall ceilings and an electric car charging. Energy-efficient features such as spray foam insulation in the walls and rafters, tankless water heater, concrete plank siding ensure low maint. and efficiency.
-
4BEDS
-
0.32ACRES
-
3BATHS
-
11/2 BATHS
-
3,254SQFT
-
$0$/SQFT
School Ratings & Info
Description
Experience luxury living in this under-construction custom home located in the neighborhood of The Enclave. Professionally designed, this open-concept is perfect for entertaining, both indoors and out. The chef's kitchen is a culinary dream, featuring custom cabinetry extending to the ceiling, an expansive island for meal prep, gas cooktop, pot filler, under-cabinet lighting, and much more. The main level boasts a primary suite with coffered ceilings, leading to a spa-like bathroom complete with a soaking tub, a walk-in shower with a bench, and hidden niches. Upstairs, you'll find 2 additional bedrooms, an oversized bonus room that can serve as a 4th bedroom, and a versatile flex space that can be used as an office, gym, or craft room. The home also includes a full 3-car garage with tall ceilings and an electric car charging. Energy-efficient features such as spray foam insulation in the walls and rafters, tankless water heater, concrete plank siding ensure low maint. and efficiency.
Related Properties
The data relating to real estate on this web site comes in part from the Internet Data Exchange program of Hive MLS LLC, and is updated as of 2026-01-21T00:07:52.287. All information is deemed reliable but not guaranteed and should be independently verified. All properties are subject to prior sale, change, or withdrawal. Neither listing broker(s) nor [name of IDX Participant’s firm] shall be responsible for any typographical errors, misinformation, or misprints, and shall be held totally harmless from any damages arising from reliance upon these data. © 2026 Hive MLS LLC
